
Townhouses
Townhouses de lujo en Punta Cana
- 3 DORMITORIOS
- 3.5 BAÑOS
- POWDER ROOM
- TERRAZA PRIVADA
- PISCINA PRIVADA
Larimar City
Descubre la rentabilidad sin preocupaciones con Larimar City & Resort. Ofrecemos un atractivo retorno del 10% anual y aseguramos tu inversión.
Contacta con nosotros al 787-642-2316 para obtener más información o para reservar tu propiedad.
Comodidades
Situados en una ubicación privilegiada, los Townhouses adosadas están diseñadas para brindar espectaculares vistas al campo de golf gracias a su disposición abierta, que ofrece una experiencia única y exclusiva.
Casa Club
Zonas Verdes
Paseos
Zona de Restauración
Parqueos
Seguridad 24h
Movilidad Sostenible
Zonas de Descanso
Vistas a la Naturaleza
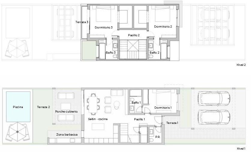
Townhouses
NIVEL 1
Superficie interior: 883,18 S.Q. FT. 82,08 S.Q. M.
Superficie terrazas (1+2): 1,257,63 S.Q. FT. 116,88 S.Q. M.
NIVEL 2
Superficie interior: 795,92 S.Q. FT. 73,97 S.Q. M.
Superficie terraza (3): 35,31 S.Q. FT. 3,30 S.Q. M.
TOTAL
Total interior: 1.679,10 S.Q. FT. 156,05 S.Q. M.
Total terrazas: 1.293,14 S.Q. FT. 120,18 S.Q. M

Nuestros townhouses de lujo en Larimar City and Resort, son la opción ideal para ti.
Con 3 dormitorios, 3,5 baños, un powder room, terraza privada y piscina privada, estas propiedades te ofrecen todo lo que necesitas para vivir o vacacionar con estilo.
Ubicadas en una zona privilegiada de Punta Cana, con acceso a las mejores playas, restaurantes y atracciones, nuestros townhouses te permitirán disfrutar de todo lo que esta hermosa ciudad tiene para ofrecer.
Además, al adquirir una de nuestras propiedades, recibirás una membresía al clubhouse del campo de golf en la smartcity más grande del caribe, para que puedas disfrutar de este deporte en un entorno de lujo.
Solicita una Asesoría.
Invierte Seguro

